Propiété
Propiété
Description
Rare sur le marché, ce condo d'exception se distingue par son cachet unique de maison de ville répartie sur trois niveaux, bénéficiant d'une magnifique luminosité. Construit en 2013, il offre un intérieur moderne et très chaleureux qui saura vous charmer. Situé dans un secteur paisible, il bénéficie d'un emplacement stratégique à proximité de toutes les commodités et à quelques minutes des autoroutes. Le quartier, en pleine revitalisation grâce à la réfection de la Promenade Ontario et à l'implantation de nouveaux commerces, rend la vie de quartier des plus agréables, à distance de marche de tous les services. Une occasion à ne pas manquer !
Située dans un quartier résidentiel en pleine expansion le
secteur Mercier, conçu pour la vie de famille, cette
propriété saura vous séduire.
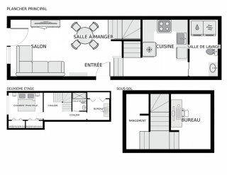
Condo réparti sur trois niveaux (rez-de-chaussée, étage et
sous-sol), soigneusement entretenu par les propriétaires.
Le rez-de-chaussée offre un espace de vie à aire ouverte
comprenant le salon, la salle à manger et la cuisine,
créant un environnement convivial et fonctionnel. Une salle
d'eau avec espace laveuse-sécheuse complète ce niveau.
À l'étage, on retrouve une grande chambre principale munie
de deux garde-robes, offrant un excellent espace de
rangement.
La deuxième chambre ne possède pas de fenêtre. Une salle de
bain complète se trouve également à cet étage.
Le rez-de-chaussée et l'étage bénéficient de plafonds de 9
pieds.
Le sous-sol, sans fenêtre, propose un espace polyvalent
pouvant servir de bureau, salle d'entraînement ou autre
usage, ainsi qu'un espace de rangement.
Une thermopompe murale assure un confort optimal en toute
saison.
Améliorations effectuées en 2024 :
- Planchers du rez-de-chaussée et de l'étage re-sablés
- Plinthes remplacées au rez-de-chaussée et à l'étage
- Peinture complète des trois étages
- Habillage de fenêtres remplacé au salon et dans la
chambre principale
- Lavabo remplacé dans la salle d'eau
- Luminaires remplacés au rez-de-chaussée, dans la chambre
principale, la salle de bain et le bureau au sous-sol
Propriété clé en main, située dans un environnement
paisible, à proximité des services, des commerces et des
axes routiers.
Accès aux transports en commun (métro Honoré-Beaugrand)
Une occasion à ne pas manquer !
Inclus : Hotte de cuisine, échangeur d'air, thermopompe murale, luminaires, rideaux et pôle, installation de la tuyauterie de l'aspirateur central, bureau dans la petite chambre. Le tout vendu sans la garantie de qualité.
Exclus : Réfrigérateur, cuisinière, lave-vaiselle et support mural pour la télévision du salon.
Emplacement
Détails des pièces
| Chambre | Dimensions | Niveau | Revêtement |
|---|---|---|---|
| Salon | 11.0 x 10.0 P | Rez-de-chaussée | Bois |
| Salon | 11.0 x 10.0 P | Rez-de-chaussée | Bois |
| Salle à manger | 10.0 x 9.0 P | Rez-de-chaussée | Bois |
| Salle à manger | 10.0 x 9.0 P | Rez-de-chaussée | Bois |
| Cuisine | 10.0 x 8.2 P | Rez-de-chaussée | Béton |
| Cuisine | 10.0 x 8.2 P | Rez-de-chaussée | Béton |
| Salle d'eau | 10.0 x 5.0 P | Rez-de-chaussée | Céramique |
| Salle d'eau | 10.0 x 5.0 P | Rez-de-chaussée | Céramique |
| Chambre à coucher principale | 12.9 x 13.3 P | 2ième étage | Bois |
| Chambre à coucher principale | 12.9 x 13.3 P | 2ième étage | Bois |
| Chambre à coucher | 8.1 x 7.10 P | 2ième étage | Bois |
| Chambre à coucher | 8.1 x 7.10 P | 2ième étage | Bois |
| Bureau à domicile | 7.5 x 7.0 P | 2ième étage | Bois |
| Bureau à domicile | 7.5 x 7.0 P | 2ième étage | Bois |
| Salle de bains | 6.9 x 5.4 P | 2ième étage | Céramique |
| Salle de bains | 6.9 x 5.4 P | 2ième étage | Céramique |
| Bureau à domicile | 9.10 x 7.1 P | Sous-sol | Bois |
| Bureau à domicile | 9.10 x 7.1 P | Sous-sol | Bois |
| Rangement | 9.10 x 4.0 P | Sous-sol | Bois |
| Rangement | 9.10 x 4.0 P | Sous-sol | Bois |
Caractéristiques
| Sous-sol | 6 pieds et plus, Totalement aménagé |
|---|---|
| Équipement disponible | Balcon privé, Échangeur d'air, Interphone, Thermopompe murale |
| Revêtements | Brique |
| Énergie pour le chauffage | Électricité |
| Type de fenêtre | Manivelle |
| Système d'égouts | Municipal |
| Approvisionnement en eau | Municipalité |
| Mode de chauffage | Plinthes électriques |
| Fenêtres | PVC |
| Zonage | Résidentiel |
Cette inscription est présentée en collaboration avec EXP AGENCE IMMOBILIÈRE